
YMCA of NW Florida plans construction of a 2,116 square-foot building addition, and associated roof drain
connection to the existing pond, for the Betty J. Pullum Family YMCA, located on Pawnee Street in Navarre.
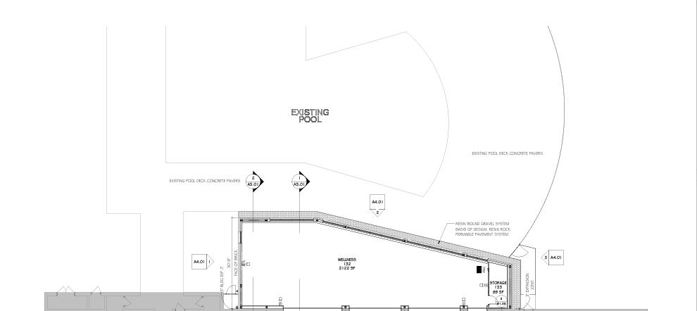
The wellness building addition will be constructed on the northeast side of the building, adjacent to the pool.
The site was initially developed in 2005. Construction included the YMCA family recreational
center, parking lot, utility infrastructure, and stormwater management system.
The proposed building addition will add installation of the modular building and construction of
the associated concrete sidewalks will add 0.05 acres of impervious area.
